1階にLDK? それとも 2階にLDK?
京都府城陽市で工務店さんのモデルハウスの設計をご依頼いただき
1階にLDKがある【朝カフェの家】
と
2階にLDKがある【外リビングの家】
の
2案をご提案しました
朝カフェの家
外リビングの家
建築場所は
北側:住宅
西側:道路
南側:市所有の空き地
東側:たんぼ
と3方向に開かれた土地での計画となっています。
どちらのお家も
東側のたんぼ側から
朝日がたっぷり差し込む立地をいかし
例えば
朝、顔洗ったあと、そのままテラスに出て朝日浴びながら伸びして1日の始まり!
みたいに、妄想しただけで
朝から気持ち良さそうな、ちょっとワクワクするようなお家となっております!
【朝カフェの家】
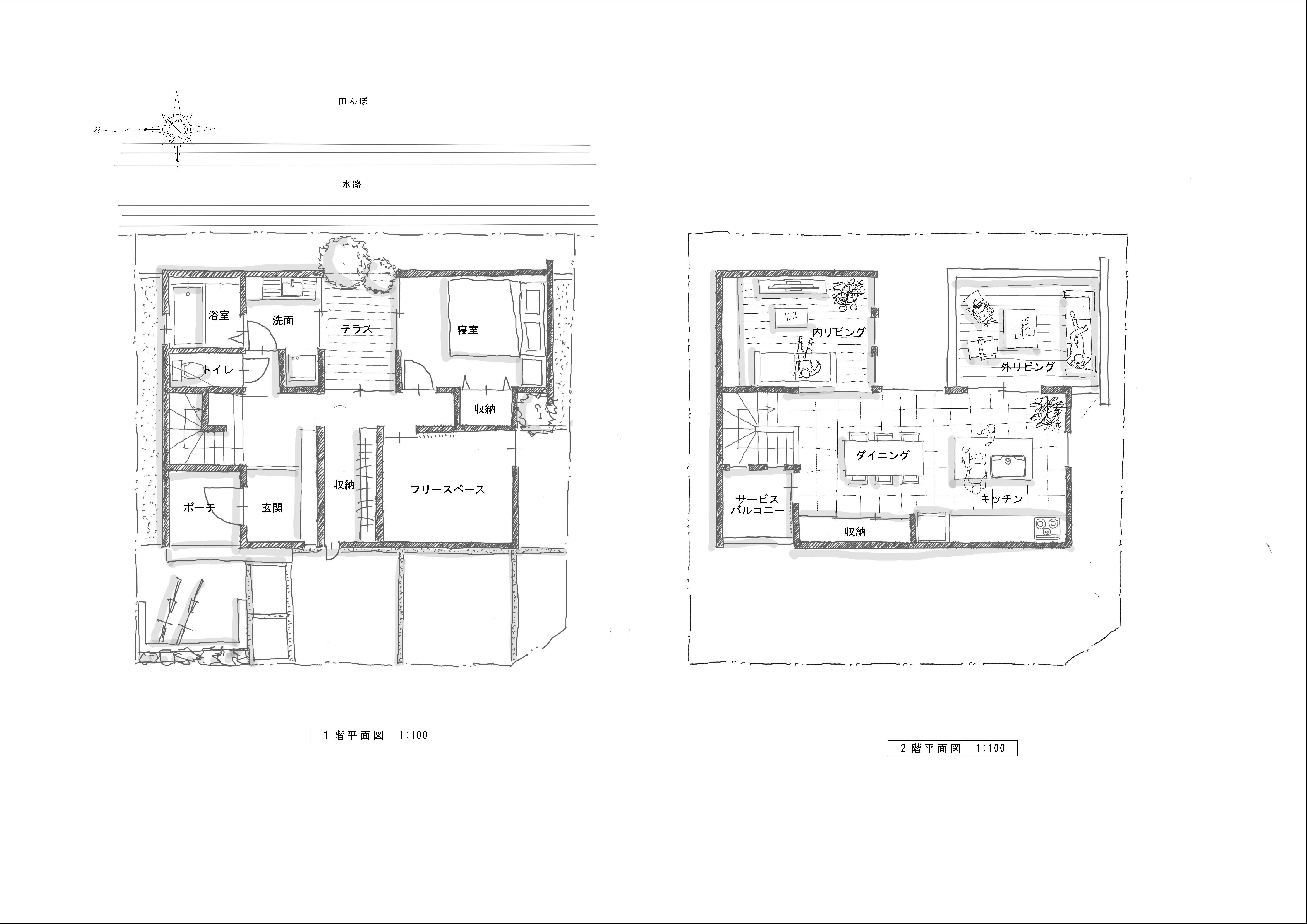
朝カフェの家と名付けた計画案は1階にLDKのあるお家。
シリアルやヨーグルト、季節の果物であったり、
昨日買っておいたお気に入りのパン屋さんのトーストに、
たっぷりバターなのか目玉焼きをのせるのか悩みながら
その日の朝食を夫婦一緒に準備し、
朝日を浴びながら家族でカフェ気分を味わいながらの食事を楽しむ、、、
そんな妄想しながら計画した案

間取り図

西側外観


南側外観


東側外観

朝日が差し込みLDK、気持ちいい1日のはじまり


カウンター席をテラスに設けてカフェっぽい雰囲気に

【外リビングの家】
外リビングの家と名付けた計画案は2階にLDKのあるお家。
気の合う仲間とホームパーティーをしてみたり、
コーヒー飲みながら読書してみたり、
ぼーっとしてみたり、
昼寝してみたり、
子供とビニールプールで遊んでみたり、
プランターで野菜育ててみたり、
夜風にあたりながら夫婦で語りあったり、、、そんな妄想をしながら計画した案
間取り図 西側外観 南側外観 東側外観 外リビング ダイニング、キッチン 内リビング キッチンより









そんなようなことを妄想しながら考えた2案となっています
みなさんはどちらのお家に住んでみたいですか?
冒頭に書きましたが
建築場所は京都府南部の城陽市での計画となっております
ご興味ございましたらお問合せくださいませ!